ターネンビル No.2
物件情報
緑に調和したレンガ調のオフィスビル
建築概要
●名称/第2ターネンビルディング
●所在地/大阪市中央区谷町2丁目3の1
●敷地面積/369.65m2
●建築面積/295.57m2
●延床面積/2,980.39m2
●構造/鉄骨鉄筋コンクリート造 (SRC)
●階数/地下1階、地上9階、塔屋1階
●外装仕上/外壁:タイル貼 窓:アルミサッシ
●内装仕上/玄関ホール・床:御影石、壁面:大理石貼、天井:アルミ型板(不燃材使用)
●設計・施工/(株)金山工務店
●竣工/昭和50年7月末日
●建築確認/昭和49年7月10日 第1637号
設備概要
●電 気 設 備 /受変電設備6,600V 高圧受電、照明設備、 蛍光灯下面開放(400LUX)、
電話設備、局線引込200回線
●給水衛生設備 /給水設備、受水槽12㎥、高架水槽5㎥
各階湯沸室にガス溜湯沸器設置
●空 調 設 備 /個別空調
●エレベーター設備 /自動EV定員11人乗り…1基
●防 災 設 備 /自動火災警報設備、非常照明設備、地下排煙設備、
地下店鋪スプリンクラー設備、避難設備
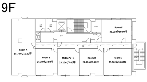
コンパクトオフィス(4F・9F)
大阪の中心地、谷町筋に面した好立地に、コンパクトオフィス登場
通常の賃貸オフィスでは考えられない「初期費用の低さ」で事業を開始することができます。大阪城が見渡せる部屋をはじめ、共有の会議室、応接室を完備しています。




